Levantamiento de Planos
Elaboramos planos digitales a partir de tu croquis o documentación, tanto para particulares como para empresas.
Un buen plano te ayuda a optimizar la distribución y anticipar el resultado antes de reformar, facilitando la planificación del espacio.
Contar con un plano exacto también mejora la comunicación con las empresas de reformas y te permite conseguir presupuestos más ajustados y realistas.
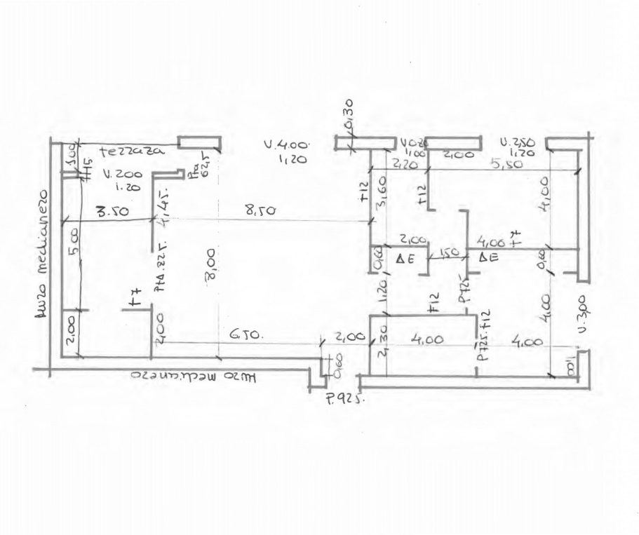
Solo necesitamos que nos envíes un croquis, aunque sea hecho a mano; lo importante es que las medidas sean correctas: ancho y largo de cada estancia, dimensiones de paredes, ubicación de puertas y ventanas, alturas y posición de pilares.
Si no tienes medios para realizar la medición, nosotros podemos encargarnos sin problema.
Además, si lo deseas, también podemos realizar una representación 3D del proyecto para visualizarlo en volumen y apreciar mejor los espacios.
Fases del Levantamiento de una Vivienda

Toma de datos
La fase inicial del trabajo corresponde a la toma de datos y recopilación de información del espacio.

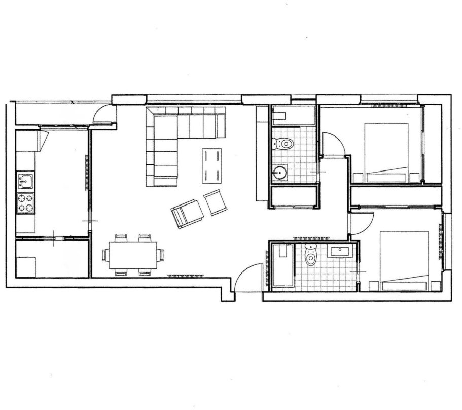
Delineación de la vivienda
Durante la segunda fase se realiza la representación gráfica del espacio, desarrollando el plano a partir de las mediciones registradas previamente en campo.

Fase final Modelado 3D
En la fase final se lleva a cabo el modelado 3D de la vivienda, lo que permite obtener una visualización volumétrica precisa y facilitar la interpretación del proyecto.
