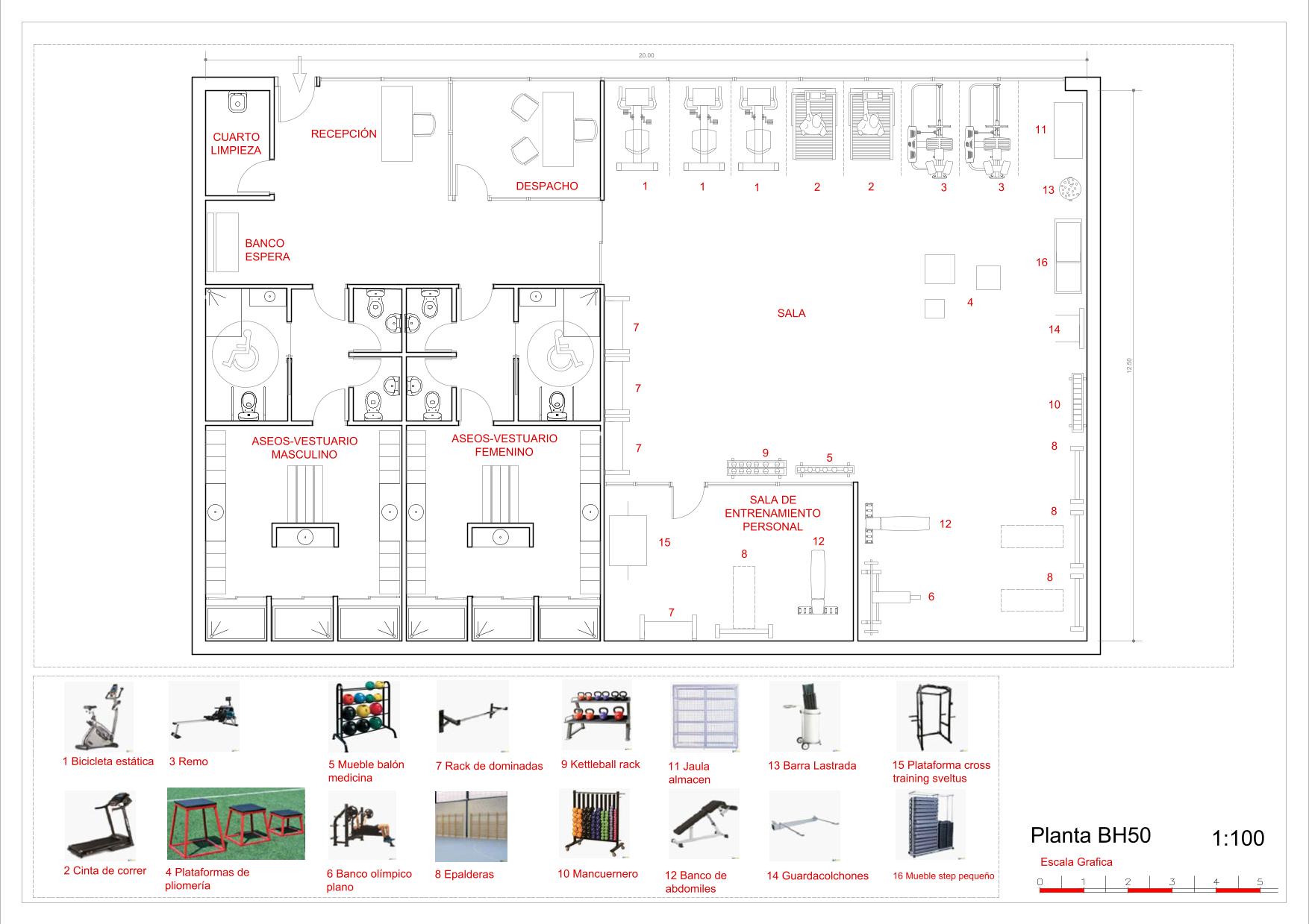
Proyectos Varios
En cada trabajo, delineamos cuidadosamente cada etapa, desde la idea inicial hasta su ejecución final. Ofrecemos soluciones eficientes, funcionales y estéticamente destacadas.
Te invitamos a explorar nuestros proyectos.

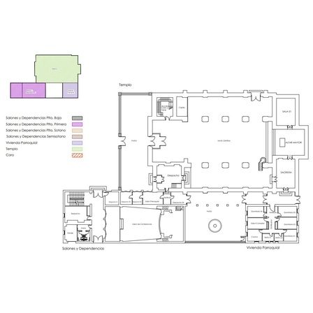
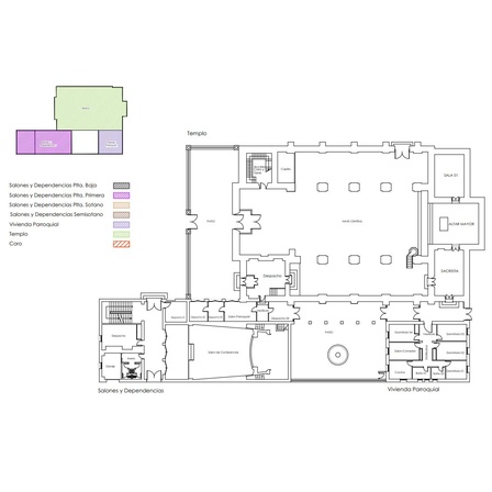
Se llevó a cabo un trabajo integral de documentación técnica del estado actual de la vivienda.
El proceso incluyó el levantamiento completo de planos de planta, alzados y secciones, realizados a partir de mediciones directas y verificación in situ.
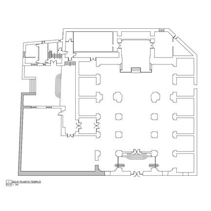
Parroquia
Asimismo, se elaboró el cálculo de superficies útiles y construidas, conforme a la normativa vigente, garantizando la fiabilidad de la información gráfica y métrica generada.
Este levantamiento constituye la base documental necesaria para futuras actuaciones de rehabilitación, reforma o legalización del inmueble.
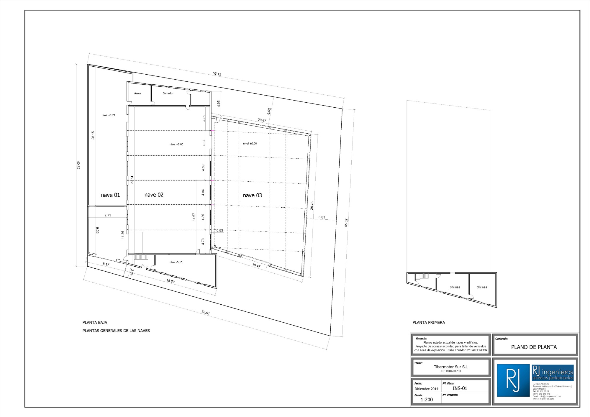
El presente anteproyecto corresponde a un edificio de seis plantas destinado a uso administrativo.
El inmueble ha sido objeto de una reconfiguración espacial, con el objetivo de optimizar la distribución interior, mejorar la eficiencia funcional de cada nivel y adecuar los espacios a las nuevas necesidades operativas.












