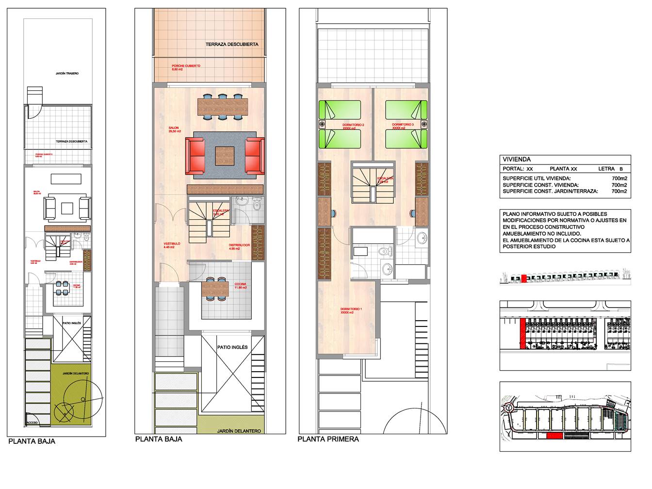
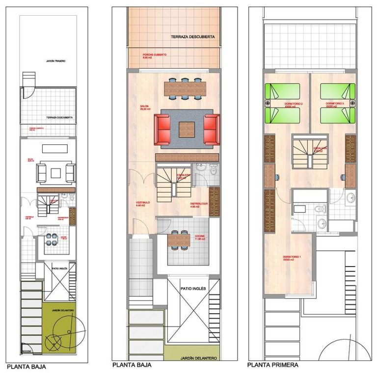
Vivienda Unifamiliar
Diseñamos y desarrollamos viviendas unifamiliares personalizadas, combinando funcionalidad, diseño y eficiencia para crear hogares únicos y adaptados a cada cliente.
Te invitamos a que explores más de nuestros proyectos.

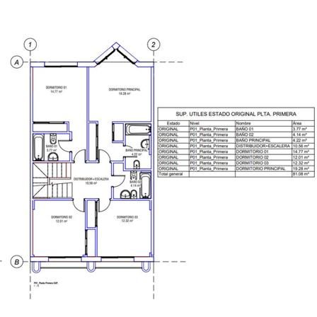
Se llevó a cabo un trabajo integral de documentación técnica del estado actual de la vivienda.
El proceso incluyó el levantamiento completo de planos de planta, alzados y secciones, realizados a partir de mediciones directas y verificación in situ.
Vivienda Unifamiliar Aislada
Asimismo, se elaboró el cálculo de superficies útiles y construidas, conforme a la normativa vigente, garantizando la fiabilidad de la información gráfica y métrica generada.
Este levantamiento constituye la base documental necesaria para futuras actuaciones de rehabilitación, reforma o legalización del inmueble.
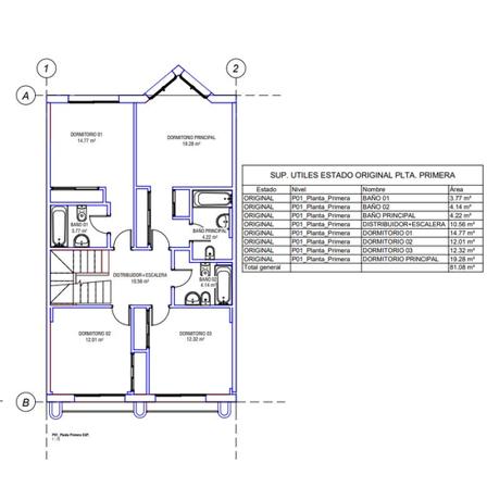
Se llevó a cabo un trabajo integral de documentación técnica del estado actual de la vivienda.
El proceso incluyó el levantamiento completo de planos de planta, alzados y secciones, realizados a partir de mediciones directas y verificación in situ.
Vivienda Unifamiliar Aislada
Asimismo, se elaboró el cálculo de superficies útiles y construidas, conforme a la normativa vigente, garantizando la fiabilidad de la información gráfica y métrica generada.
Este levantamiento constituye la base documental necesaria para futuras actuaciones de rehabilitación, reforma o legalización del inmueble.
Se llevó a cabo un trabajo integral de documentación técnica del estado actual de la vivienda.
El proceso incluyó el levantamiento completo de planos de planta, alzados y secciones, realizados a partir de mediciones directas y verificación in situ.
Vivienda Unifamiliar Aislada
Asimismo, se elaboró el cálculo de superficies útiles y construidas, conforme a la normativa vigente, garantizando la fiabilidad de la información gráfica y métrica generada.
Este levantamiento constituye la base documental necesaria para futuras actuaciones de rehabilitación, reforma o legalización del inmueble.













